Project Description
ENOIKIAZOMENΕΣ ΑΝΕΞΑΡΤΗΤΕΣ ΚΑΤΟΙΚΙΕΣ
Κατοικίες από οπλισμένο σκυρόδεμα ,με κολώνες και δοκάρια και εξωτερικά θερμοπρόσοψη.
ΣΥΓΚΡΟΤΗΜΑ ΕΝΟΙΚΙΑΖΟΜΕΝΩΝ ΔΙΩΡΟΦΩΝ ΑΝΕΞΑΡΤΗΤΩΝ ΚΑΤΟΙΚΙΩΝ ΣΤΗΝ ΛΕΥΚΑΔΑ
Πρόκειται για τουριστικού χαρακτήρα έργο.
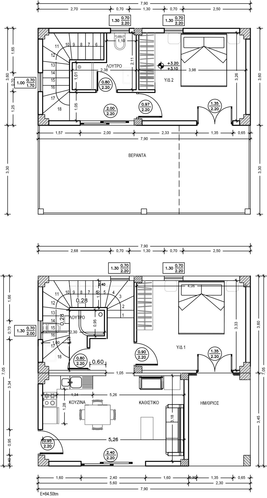
Κάθε μια κατοικία είναι Ε=84,50τμ
Πρόκειται για κατοικίες από οπλισμένο σκυρόδεμα ,με κολώνες και δοκάρια και εξωτερικά θερμοπρόσοψη.
Τα κτίρια ενεργειακά κατατάσσονται στην κατηγορία Β+
Χαρακτηριστικά
ΕΜΒΑΔΟΝ
84,50τμ
ΟΡΟΦΟΙ
2
ΕΝΕΡΓΕΙΑΚΗ ΚΛΑΣΗ
Β+












