Project Description
ΔΙΩΡΟΦΗ ΠΡΟΚΑΤΑΣΚΕΥΑΣΜΕΝΗ ΚΑΤΟΙΚΙΑ ΣΤΗΝ ΣΑΛΑΜΙΝΑ
Κατασκευή με προκατασκευασμένες κυψέλες
Διώροφη προκατασκευασμένη κατοικία στη Σαλαμίνα
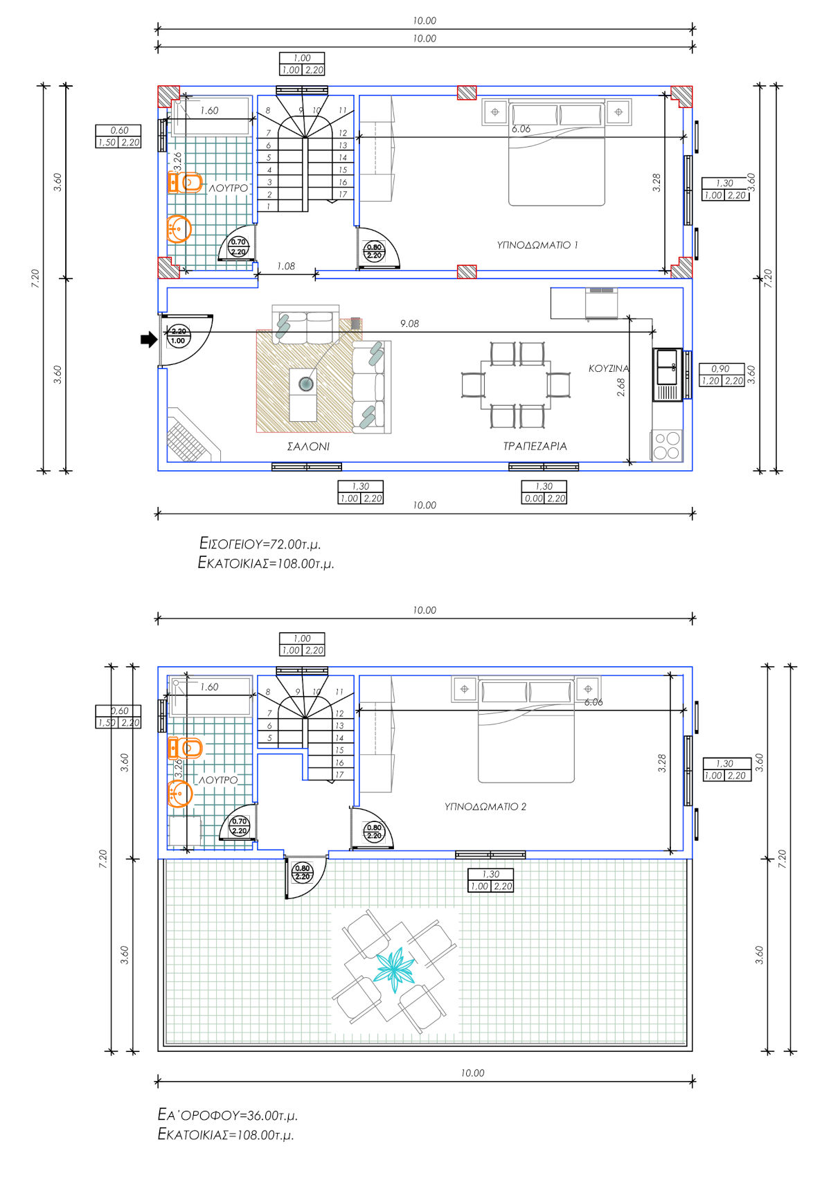
Το προκατασκευασμένο αυτό σπίτι στη Σαλαμίνα κατασκευάστηκε με την μέθοδο των προκατασκευασμένων κυψελών με υπερυψωμένο υπόγειο. Έχει τρία υπνοδωμάτια, δύο μπάνια και ένα ενιαίο μεγάλο χώρο με την κουζίνα, το σαλόνι και την τραπεζαρία.
Χαρακτηριστικά
Αρ. Έργου: 20190101
ΕΜΒΑΔΟΝ
108 μ²
ΟΡΟΦΟΙ
2
ΥΠΝΟΔΩΜΑΤΙΑ
3
ΜΠΑΝΙΑ
2







