Project Description

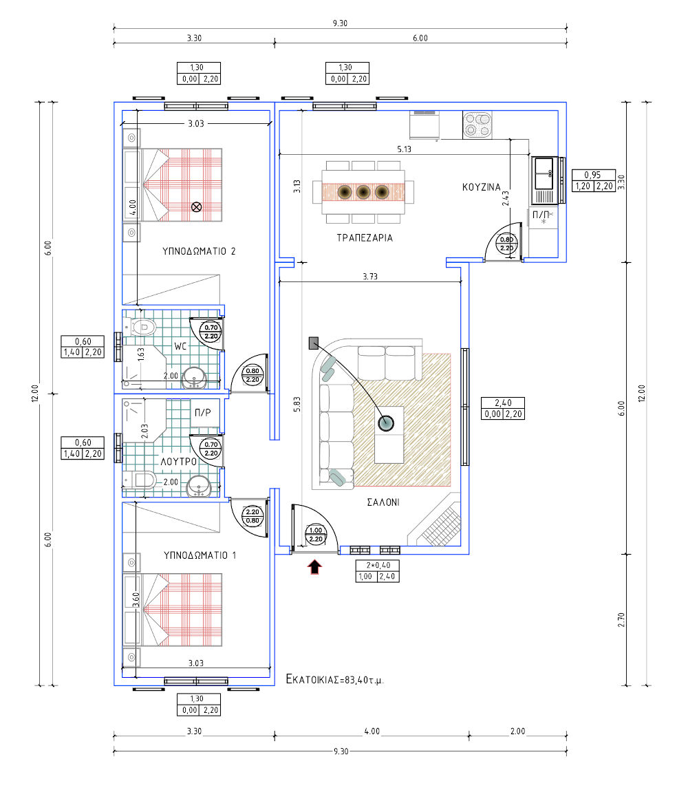
ΙΣΟΓΕΙΑ ΚΑΤΟΙΚΙΑ ΣΤΗΝ ΠΡΕΒΕΖΑ

Κατασκευή με προκατασκευασμένες κυψέλες

ΙΣΟΓΕΙΑ ΚΑΤΟΙΚΙΑ ΣΤΗΝ ΠΡΕΒΕΖΑ

Χαρακτηριστικά

Αρ. Έργου: 20160401

ΕΜΒΑΔΟΝ

83,40μ²

ΟΡΟΦΟΙ

1

ΥΠΝΟΔΩΜΑΤΙΑ

2

ΜΠΑΝΙΑ

2