Project Description

ΕΙΔΙΚΗ ΚΑΤΑΣΚΕΥΗ

 

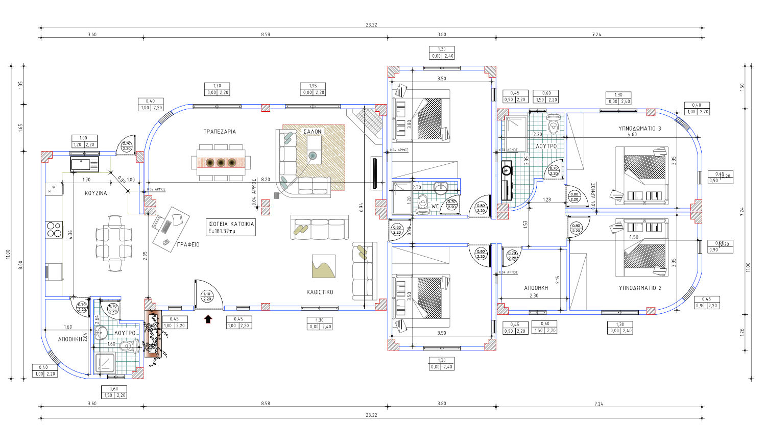
Προκάτ πολυτελής κατοικία ειδικής κατασκευής 

Η κατοικία είναι κατασκευασμένη από οπλισμένο σκυρόδεμα και εξωτερικά θερμοπρόσοψη. Εξωτερικά της κατοικίας έχει κατασκευαστεί κλειστός χώρος barbecue και πισίνα. Η εταιρεία μας με το δίκτυο των συνεργατών της είχε αναλάβει το έργο εξολοκλήρου. Έκδοση οικοδομικής αδείας, κατοικία,  θεμελίωση και γενική διαμόρφωση περιβάλλοντος χώρου. Η κατοικία παραδόθηκε  ολοκληρωμένη προς κατοίκηση. Στην κατοικία έχει εγκατασταθεί σύστημα αντλίας θερμότητας, το οποίο διαθέτει ιονιστή και αφυγραντήρες για να διατηρείται σταθερή η θερμοκρασία της κατοικίας .

Χαρακτηριστικά

Αρ. Έργου: 2015010201

ΕΜΒΑΔΟΝ

181 m²

ΟΡΟΦΟΙ
1
ΥΠΝΟΔΩΜΑΤΙΑ

4

ΜΠΑΝΙΑ

2

Στάδια κατασκευής

Ολοκληρωμένη οικία