Project Description
Διώροφη προκατασκευασμένη κατοικία Ε=102,60τμ
Κατασκευή με κολώνες και δοκάρια
Διώροφη προκατασκευασμένη κατοικία Ε=102,60τμ
Η κατοικία ειναι κατασκευασμένη με την μέθοδο των προκατασκευασμένων κυψελών από
οπλισμένο σκυρόδεμα και εξωτερικά θερμοπρόσοψη (10εκ παχους)
Η κατοικία έχει κατασκευαστεί σύμφωνα με τον Ελληνικό Κανονισμό Σκυροδέματος (ΕΚΩΣ),
Ελληνικό Αντισεισμικό Κανονισμό (ΕΑΚ), τον Κανονισμό Προκατασκευής και τον Ενεργειακό
Κανονισμό-ΚΕΝΑΚ.
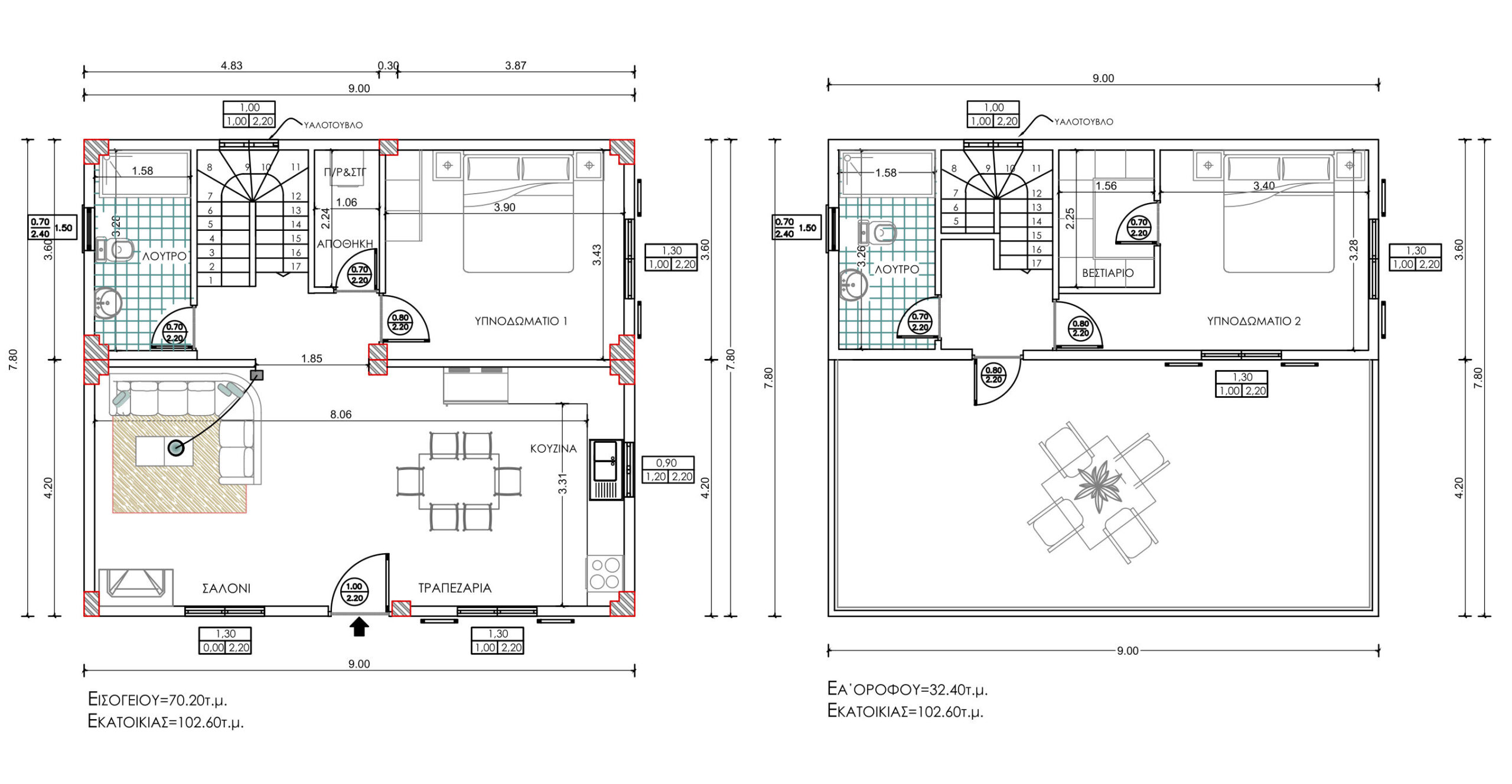
Ως προς την διαρρύθμισή της η κατοικία στο ισόγειο Ε=70,20τμ διαθέτει ενιαίο χωρο
κουζίνας με τραπεζαρία και χώρο καθιστικού Επίσης υπάρχει ένα(1)υπνοδωμάτιο, WC, και
χωρος αποθήκης.
Στον όροφο Ε=32,40τμ υπάρχει το master bedroom της κατοικίας εντός του οποίου
διαμορφώνεται βεστιάριο και το κυρίως μπάνιο της κατοικίας.
Καθώς ο όροφος καταλαμβάνει τμήμα του ισογείου διαμορφώνεται βεράντα Ε=37,80τμ.
Ως προς την διαρρύθμισή της η κατοικία μπορεί να διαμορφωθεί ανάλογα με τις
απαιτήσεις και τις ανάγκες του κάθε πελάτη ξεχωριστά και να προσαρμοσθεί στα δεδομένα
του αλλά και στις πολεοδομικές διατάξεις του κάθε οικοπέδου.
Η εταιρεία με το δικτυο των συνεργατών της αρχιτεκτόνων και πολιτικών μηχανικών
αναλαμβάνει να σχεδιάσει την κατοικία σας με τροπο λειτουργικό, φιλική στο οικιστικό
περιβάλλον,και εναρμονισμένη με τους κανονισμούς.
Χαρακτηριστικά
Κωδ. Έργου: 20141203
ΕΜΒΑΔΟΝ
102,6τμ
ΟΡΟΦΟΙ
2
ΥΠΝΟΔΩΜΑΤΙΑ
2
ΜΠΑΝΙΑ
2









