Project Description
GROUND FLOOR HOUSE
Concrete block
Ground floor house in Preveza
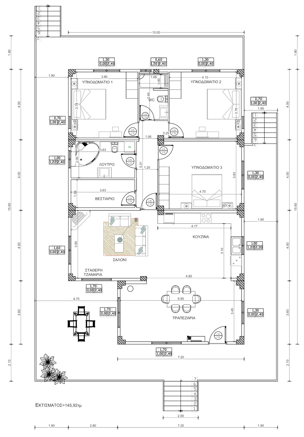
Ground floor prefabricated house with basement in Preveza. The house was built with columns, beams and additional wooden tiled roof.
The house has a SMART HOME system installed, with which there is the possibility of remote control on shutters, lights, awnings, garage door, gate door and household equipment. The owner controls everything from his mobile phone through a special application.
Characteristics
Project code: 20170801
AREA
146 m²
FLOORS
1
BEDROOMS
3
BATHROOMS
2








